| 名称 | 羽村 | 所在地 | 東京都羽村市川崎3丁目 |
|---|---|---|---|
| 沿線 / 駅 ① | 青梅線「羽村」駅 徒歩 14分 | 沿線 / 駅 ② | -- |
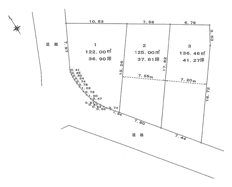
| 価格 | 価格 2,530万円 | 土地面積 | 125.00㎡ |
| 私道面積 | -- | セットバック面積 | -- |
| 建ぺい率 / 容積率 | 40% / 80% | 現況 | 更地 |
※画像をクリックすると拡大表示します
| 物件ID | ft3283-2 | 土地権利 | 所有権 |
|---|---|---|---|
| 地目 | 宅地 | 都市計画 | 市街化区域 |
| 用途地域 | 第一種低層住居専用地域 | 接道状況 | 南西 4.2m 公道 / 北西 5.0m 公道 |
| 駐車場 | -- | 引渡し | 相談 |
| 設備 |
水道(公営)ガス(--) 下水(公共)電気(東京電力) |
取引態様 | 仲介 |
| 小学校区 | -- | 中学校区 | -- |
| 建築条件 | なし | ||
| 周辺施設等 | -- | ||
| 備考 |
☆売地全3区画 ☆JR青梅線「羽村」駅から徒歩14分! ☆土地面積37.81坪! ☆建築条件はありませんので、お好きなハウスメーカーで建築できます♪ |
||
| 更新日 | 2026年03月13日 | 次回更新予定日 | 随時 |
お問い合わせは拝島店まで
042-530-5881
- 東京都福生市熊川1396
営業時間09:00~19:00
お気に入りに追加することで、後ほど確認や一括問い合わせが可能です。
お気に入りした物件はコチラ、
もしくはページ上部にあるお気に入り物件アイコンからご確認いただけます。
見学予約スケジュール
見学をご希望する日程をお選びください。※事前予約であれば営業時間外、定休日にもご対応可能です!




























