| 月々返済額の参考額 | 66,443円 (返済期間/40年 自己資金なし、変動金利0.895% ボーナス時返済なしの場合) ⇒ ローンシミュレーションはこちら |
|---|
お客様の借入条件等により、上記金利が適用できない場合がございます。詳しくは弊社までご相談下さい。
| 名称 | 石神前 | 所在地 | 東京都青梅市梅郷6丁目 |
|---|---|---|---|
| 沿線 / 駅 ① | 青梅線「石神前」駅 徒歩 11分 | 沿線 / 駅 ② | -- |
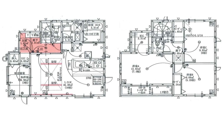
| 価格 | 価格 2,680万円 | 建物面積 /土地面積 | 91.90m² / 122.08㎡ |
| 私道面積 | -- | セットバック面積 | -- |
| 間取り | 4LDK | 築年月 | 2026年07月 完成予定 |
※画像をクリックすると拡大表示します
| 物件ID | on3025 | 構造 | 木造2階建て |
|---|---|---|---|
| 土地権利 | 所有権 | 地目 | 宅地 |
| 都市計画 | 市街化区域 | 用途地域 | 第一種低層住居専用地域 |
| 建ぺい率 | 40% | 容積率 | 80% |
| 接道状況 | 北西 4.0m 公道 | 引渡し | 相談 |
| 設備 |
水道(公営)ガス(プロパンガス) 下水(公共)電気(東京電力) |
取引態様 | 仲介 |
| 小学校区 | 第五小学校 | 中学校区 | 西中学校 |
| 周辺施設等 |
TAIRAYA吉野店:徒歩7分 セブンイレブン青梅二俣尾店:徒歩18分 ドラッグセイムス吉野梅郷店:徒歩8分 青梅市立第五小学校:徒歩11分 青梅市立西中学校:徒歩5分 |
||
| 備考 |
☆緑多く自然豊かで穏やかな住環境 ☆徒歩7分の場所にスーパーTAIRAYAがございます ☆小学校まで徒歩11分・中学校までは徒歩5分 ☆完成は2026年7月を予定しております ☆完成までは同施工主の別現場をご見学する事が可能です |
||
| 更新日 | 2026年05月09日 | 次回更新予定日 | 随時 |
お問い合わせは青梅店まで
0428-23-4881
- 東京都青梅市野上町3-23-2
営業時間09:00~19:00
お気に入りに追加することで、後ほど確認や一括問い合わせが可能です。
お気に入りした物件はコチラ、
もしくはページ上部にあるお気に入り物件アイコンからご確認いただけます。
見学予約スケジュール
見学をご希望する日程をお選びください。※事前予約であれば営業時間外、定休日にもご対応可能です!
























