| 月々返済額の参考額 | 98,964円 (返済期間/40年 自己資金なし、変動金利0.64% ボーナス時返済なしの場合) ⇒ ローンシミュレーションはこちら |
|---|
お客様の借入条件等により、上記金利が適用できない場合がございます。詳しくは弊社までご相談下さい。
| 名称 | 福生 | 所在地 | 東京都福生市福生 |
|---|---|---|---|
| 沿線 / 駅 ① | 青梅線「福生」駅 徒歩 13分 | 沿線 / 駅 ② | -- |
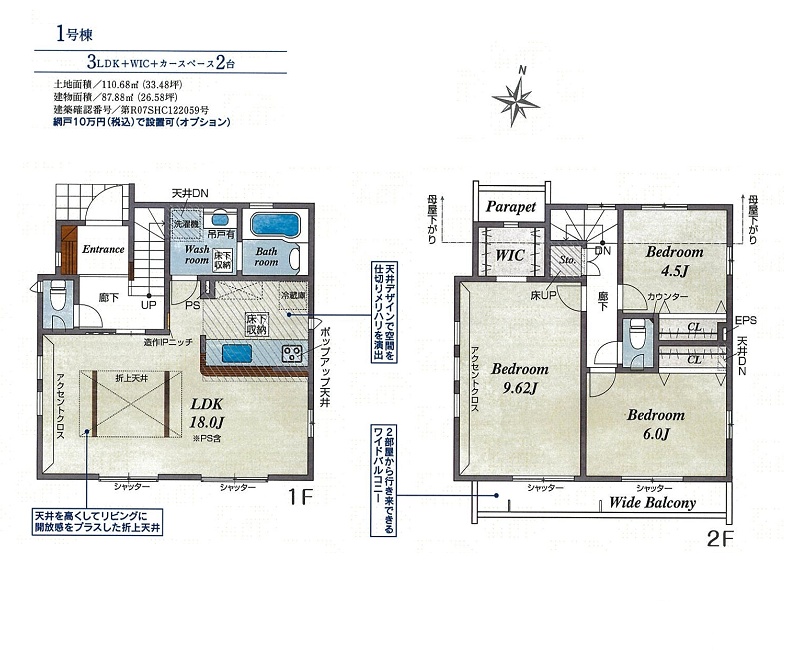
| 価格 | 価格 4,190万円 | 建物面積 /土地面積 | 87.88m² / 110.68㎡ |
| 私道面積 | -- | セットバック面積 | -- |
| 間取り | 3LDK | 築年月 | 2026年03月 完成予定 |
※画像をクリックすると拡大表示します
| 物件ID | fn3440 | 構造 | 木造2階建 |
|---|---|---|---|
| 土地権利 | 所有権 | 地目 | 宅地 |
| 都市計画 | 市街化区域 | 用途地域 | 第一種低層住居専用地域 |
| 建ぺい率 | 40% | 容積率 | 80% |
| 接道状況 | 西 4.0m 公道 | 引渡し | 相談 |
| 設備 |
水道(公営)ガス(プロパンガス) 下水(本下水)電気(東京電力) |
取引態様 | 仲介 |
| 小学校区 | 福生第四小学校 | 中学校区 | 福生第二中学校 |
| 周辺施設等 | -- | ||
| 備考 |
☆新築全1棟販売! ☆JR青梅線「福生」駅より徒歩13分! ☆住環境良好♪ ☆小学校が近く、お子様の通学も安心です♪ ☆3LDK ☆LDK広々18帖♪ ☆2階洋室9.62帖にはウォークインクローゼットあり♪ ☆ワイドバルコニー♪ ☆カースペース並列2台可!! |
||
| 更新日 | 2025年11月24日 | 次回更新予定日 | 随時 |
お気に入りに追加することで、後ほど確認や一括問い合わせが可能です。
お気に入りした物件はコチラ、
もしくはページ上部にあるお気に入り物件アイコンからご確認いただけます。
見学予約スケジュール
見学をご希望する日程をお選びください。※事前予約であれば営業時間外、定休日にもご対応可能です!


























