| 月々返済額の参考額 | 78,839円 (返済期間/40年 自己資金なし、変動金利0.895% ボーナス時返済なしの場合) ⇒ ローンシミュレーションはこちら |
|---|
お客様の借入条件等により、上記金利が適用できない場合がございます。詳しくは弊社までご相談下さい。
| 名称 | 武蔵五日市 | 所在地 | 東京都あきる野市五日市 |
|---|---|---|---|
| 沿線 / 駅 ① | 五日市線「武蔵五日市」駅 徒歩 15分 | 沿線 / 駅 ② | -- |
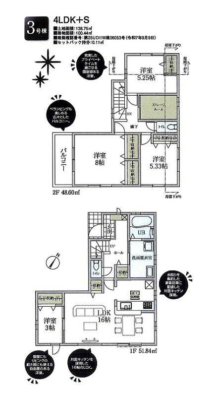
| 価格 | 価格 3,180万円 | 建物面積 /土地面積 | 100.44m² / 138.75㎡ |
| 私道面積 | -- | セットバック面積 | 0.11㎡ |
| 間取り | 4SLDK | 築年月 | 2026年02月 完成済み |
※画像をクリックすると拡大表示します
| 物件ID | fn3416-3 | 構造 | 木造2階建 |
|---|---|---|---|
| 土地権利 | 所有権 | 地目 | 宅地 |
| 都市計画 | 市街化区域 | 用途地域 | 第一種低層住居専用地域 |
| 建ぺい率 | 40% | 容積率 | 80% |
| 接道状況 | 北 4.0m 公道 / 西 3.5m 公道 | 引渡し | 相談 |
| 設備 |
水道(公営)ガス(プロパンガス) 下水(本下水)電気(東京電力) |
取引態様 | 仲介 |
| 小学校区 | 五日市小学校 | 中学校区 | 五日市中学校 |
| 周辺施設等 |
五日市小学校……現地より徒歩5分 五日市中学校………現地より徒歩4分 |
||
| 備考 |
☆新築全4棟! ☆JR五日市線「武蔵五日市」駅より徒歩15分 ☆小中学校が近く、お子様の通学も安心です♪ ☆4SLDK ☆LDK16帖♪ ☆2階ストレージルームあり♪ ☆カースペース並列2台可♪ |
||
| 更新日 | 2026年05月01日 | 次回更新予定日 | 随時 |
お問い合わせは拝島店まで
042-530-5881
- 東京都福生市熊川1396
営業時間09:00~19:00
お気に入りに追加することで、後ほど確認や一括問い合わせが可能です。
お気に入りした物件はコチラ、
もしくはページ上部にあるお気に入り物件アイコンからご確認いただけます。
見学予約スケジュール
見学をご希望する日程をお選びください。※事前予約であれば営業時間外、定休日にもご対応可能です!





























